Get In Touch
0115 784 3525

Range of Units at Chesterbank Business Park, River Lane, Saltney, CH4 8SL

£6,000(from) Per annum

Warehouse To Let in Saltney

There are a range of industrial / storage units available which are of steel portal frame construction with block work walls under a pitched roof. The units comprise predominantly an open plan workshop / storage area with access to shared W.C facilities. The units benefit from roller shutter door and on-site parking.

Location

The units are located on Chesterbank Business Park within the well established River Lane industrial area. Chesterbank Business Park is accessed directly from Chester Road (A5104) which is one of the main arterial roads into Chester City Centre providing easy access to the A55. The wider area is of mixed use comprising a variety of residential, shops, commercial units, café's, restaurants and professional services. Occupiers within the immediate vicinity include Plumb Centre, Go Outdoors and Asda. The estate benefits from excellent transport links with the A5104, A483 and the A55 close by.

Chester is located approximately 20 miles south of Liverpool, 40 miles south west of Manchester and 38 miles north west of Stoke-On-Trent.

Description

There are a range of industrial / storage units available which are of steel portal frame construction with block work walls under a pitched roof. The units comprise predominantly an open plan workshop / storage area with access to shared W.C facilities. The units benefit from roller shutter door and on-site parking.

Accommodation

We have been informed that the approximate gross internal floor areas are as follows;

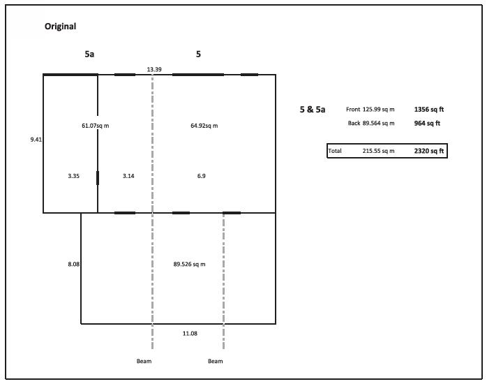
5&5a - 215.53 sq m (2,320 sq ft)
6a - 186.92 sq m (2,012 sq ft)
9h - 60.38 sq m (650 sq ft)

Services

We understand that mains electricity and water are connected. None of the heating systems or any other plant and equipment have been tested by Commercial List and prospective lessees must rely on their own investigations as to their existence and condition.

Business rates

From enquiries made though the Valuation Office website, we understand that the following rateable value applies;

5&5a - to be assessed
6a - £7,700
9h - £2,550

Interested parties should make their own enquiries as to the amount of rates payable.

Terms

The unit are available TO LET on a new full repairing and insuring lease for a term to be negotiated at an asking rent from £6,000 plus VAT per annum.

Please note there is a service charge payable on the estate, please contact the agent for further information.

Rent

5&5a - £12,000 plus VAT per annum
6a - £13,500 plus VAT per annum
9h - £6,000 plus VAT per annum

Epc

Energy ratings;

5&5a - to be assessed
6a - E
9h - E

Vat

We understand that VAT is payable on the rents.

Legal costs

Each party to pay their own legal costs incurred.

Viewing

For an appointment to view or further information please contact;

Commercial List
e: enquiries@commerciallist.co.uk t: 0115 784 3525

Agent notes

Please note, by submitting an enquiry regarding this property you agree that we may send your details to the freeholder / landlord / managing agent of this property so they may contact you in order to answer any questions or arrange a convenient viewing time. Furthermore, these Particulars are believed to be correct, but their accuracy cannot be guaranteed, and they do not constitute an offer or a contract.

 

Register Interest

Skip