Get In Touch
0115 784 3525

Range of Industrial Units, Sovereign Enterprise Centre, Warrington Lane Wigan, WN1 3AB

0Non Quoting

Warehouse To Let in Wigan

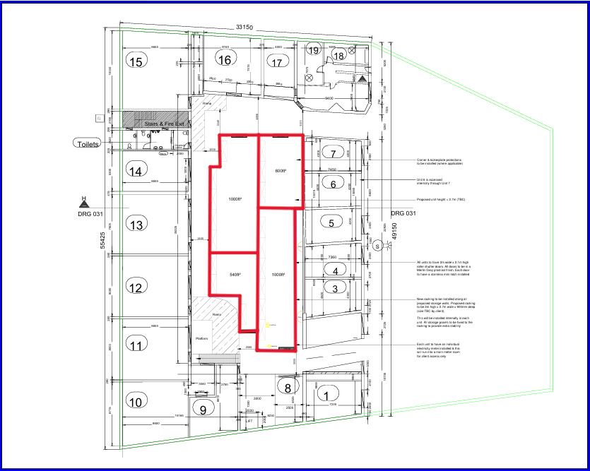
Sovereign Enterprise Centre comprises an array of commercial units built around a glazed court yard/atrium. There are four new business units now available which have use of communal W.C's and kitchen facilities.

Location

The estate is located along Warrington Road a short walk from Wigan town centre just of the A577. The A577 joins the A579 which in turn joins the A6 then the M61 at junction 4 & 5. To the south the A577 leads to the A49 which in turn at junction 25 joins the M6. The wider area is of mixed use comprising a variety of residential, shops and commercial units. The train station and bus terminus in Wigan Town centre are within a 10 minute walk (0.02 mile) of the estate.

Description

Sovereign Enterprise Centre comprises an array of open-top commercial units built around a glazed courtyard/atrium. There are three new business units available which have use of communal W.C's and kitchen facilities. The estate benefits from the following;

- On-site CCTV system
- Free internet access via WIFI
- On-site forklift service
- Good onsite parking

Accommodation

We have been informed that there are a range of units available from 55.74 sq m (600 sq ft) to 92.90 sq m (1,000 sq ft).

Services

We understand that mains electricity and drainage are connected. None of the heating systems or any other plant and equipment have been tested by Commercial List and prospective tenants must rely on their own investigations as to their existence and condition.

Business rates

The units may be eligible for small business rates relief. However interested parties should make their own enquiries as to the amount of rates payable.

Terms

The units are available TO LET on a new full repairing and insuring lease for a term to be negotiated. Please contact the agent for information on the rents.

Epc

Energy ratings: tbc

Vat

We understand that VAT will be charged on the rent.

Legal costs

Each party to pay their own legal costs incurred.

Viewing

For an appointment to view or further information please contact;

Commercial List
e: enquiries@commerciallist.co.uk t: 01476 930891

Agents note

Please note, by submitting an enquiry regarding this property you agree that we may send your details to the freeholder / landlord / managing agent of this property so they may contact you in order to answer any questions or arrange a convenient viewing time. Furthermore, these Particulars are believed to be correct, but their accuracy cannot be guaranteed, and they do not constitute an offer or a contract.

 

Register Interest

Skip